×
×
×
Mallorca Zero

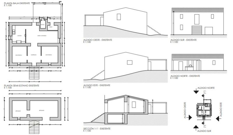
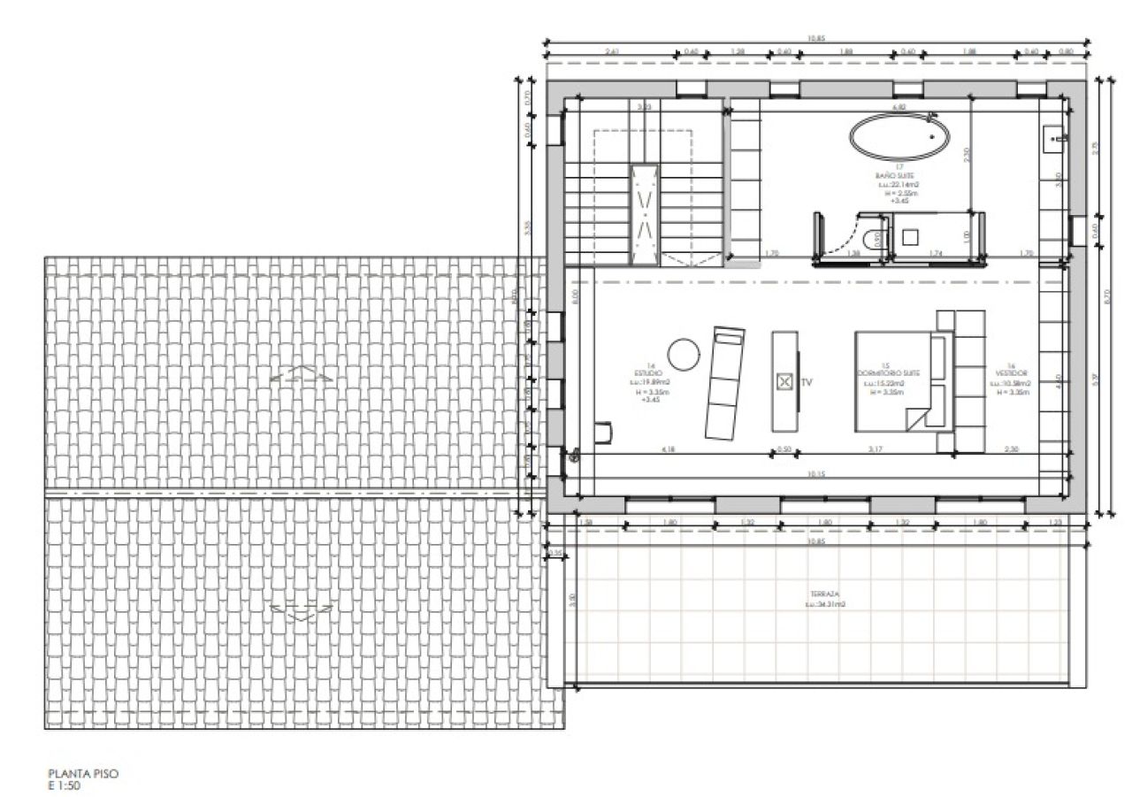
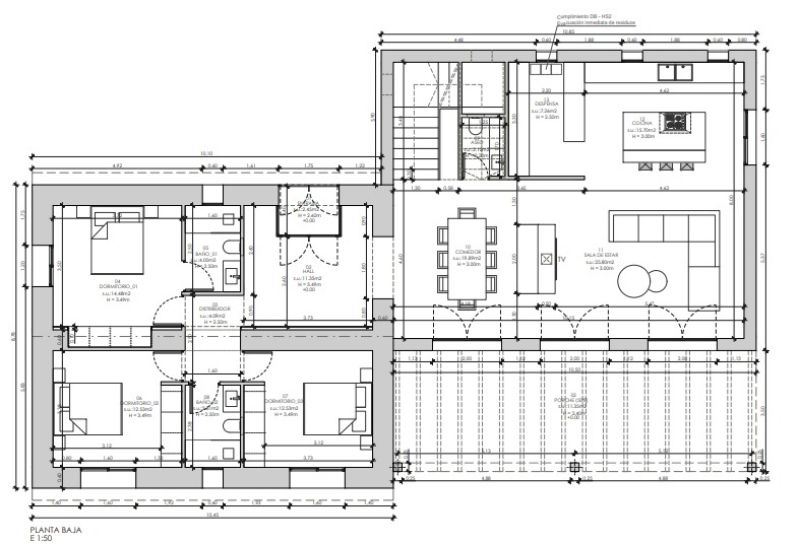
Grundstück zum Verkauf mit Projekt in Son Macia.



25.03.2026
ID: 244115
Anbieter:
MO
Mallorca Open 0

Original: Spanisch. Diese Anzeige wurde automatisch übersetzt.
500.000 €

Grundstück zum Verkauf mit Projekt in Son Macia.

Grundstück zum Verkauf mit Projekt in Son Macia.

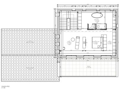
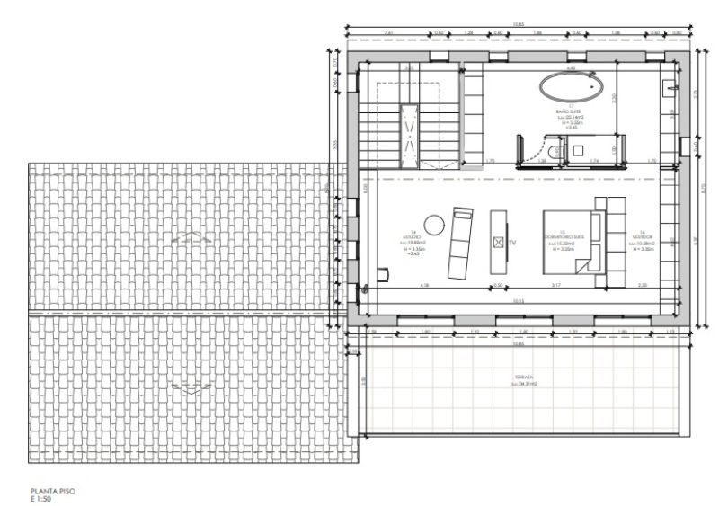
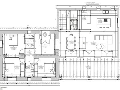
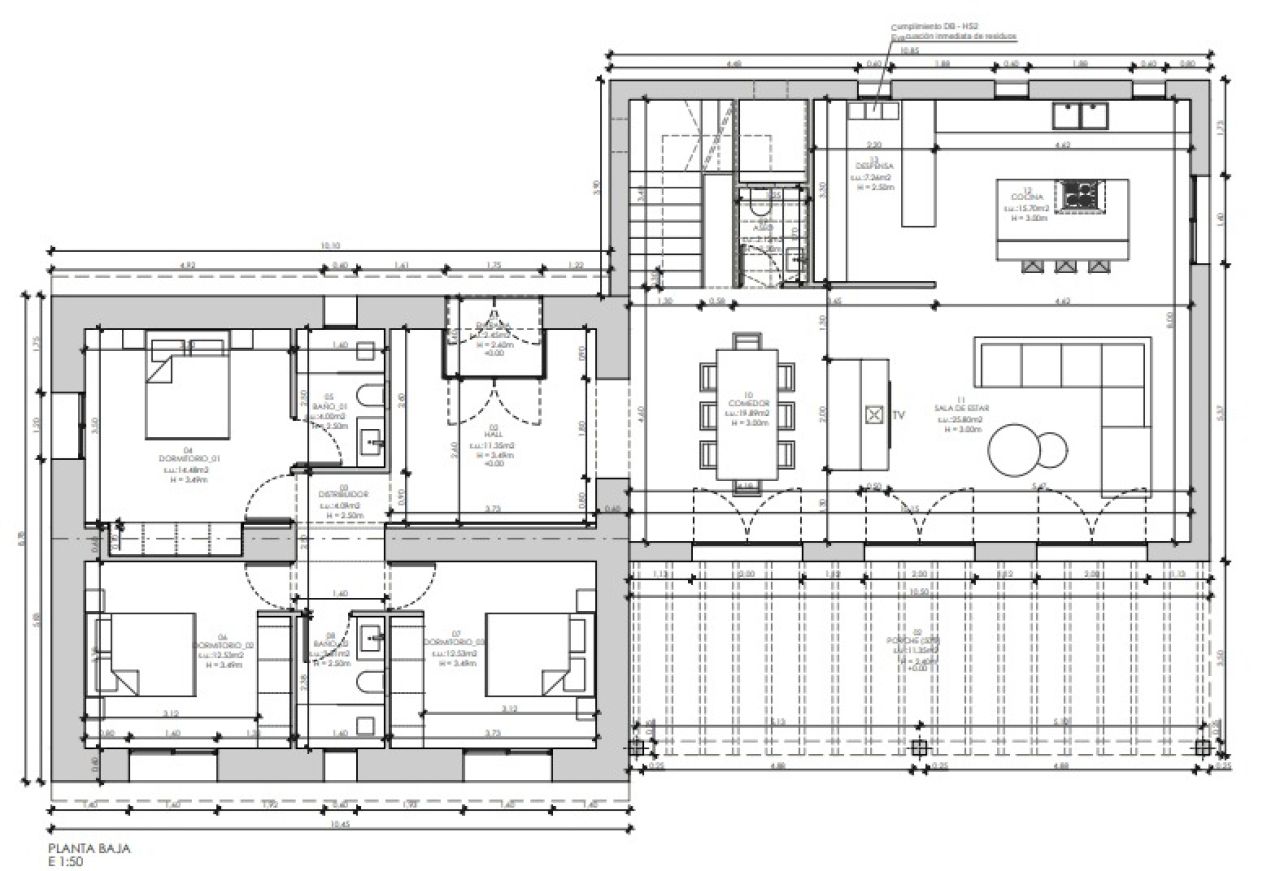
Ein Haus von 223m2 kann mit 3 Schlafzimmern und 2 Bädern und einem Swimmingpool gebaut werden.

Ähnliche Anzeigen